ABOUT
ie丸の内ビルディングの概要
ieビルディングは
ビル環境、設備、管理、サービスによって
過ごしやすいオフィス環境を提供いたします
ie丸の内ビルディングは、名古屋駅と栄の中間賃店でどこへでもアクセスしやすい立地と建築家國分孝雄氏による洗練された意匠と清水建設施工による耐震構造と最新の設備を備えるインテリジェントビルです。また、現在ご入居中のテナント様は、各分野で活躍されている一流企業様ばかりです。
■主な設備・構造
・3台のエレベーター設置
・フリーアクセスフロア
・24時間個別空調
・選べる光ケーブル(NTT、KDDI、CTC)
・セキュリティー連動の非接触型カードキー
・24時間貸室使用可能
・新基準に対応した耐震設計
・温暖化に考慮した屋上緑化
・喫煙ルーム(各フロア設置)
・ワンコイン自動販売機
・フロアーに柱のない設計(柱間16mを実現)
・6つの選べる区画(165坪・132坪・105坪・60坪・33坪・27坪)
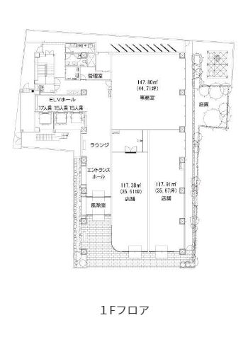
FLOOR DETAIL
ie丸の内ビルディングのフロアの紹介
FACILITY DETAIL
ie丸の内ビルディング設備の紹介
SPEC OVERVIEW
ie丸の内ビルディングの建築/設備概要
■建築概要
名称 ie丸の内ビルディング
所在 愛知県名古屋市中区丸の内一丁目15番20号
交通 地下鉄桜通線・鶴舞線「丸の内」駅徒歩4分
地下鉄桜通線「国際センター」駅徒歩5分
JR・近鉄・名鉄・地下鉄「名古屋」駅徒歩15分
名古屋市基幹バス「桜通伏見」バス停徒歩1分
構造・規模 鉄骨造地上12階 塔屋1階 高さ 44.70m
駐車場 エレベータ方式駐車設備
80台(エレベータ式:80台(うちハイルーフ対応8台))
竣工 平成21年4月27日
■貸室概要
オフィス面積 1,936坪(1フロアあたり166坪前後)
基準階天井高 2,700mm(1階のみ3,000mm)
OAフロア フリーアクセス40mm(1階のみ100mm)
耐荷重300kg/㎡
照明 蛍光灯照明器具 照明机上基準照度700ルクス以上
コンセント容量 50VA/㎡
床荷重 事務室:400kg/㎡、店舗:300kg/㎡
■設備概要
電気設備 受電:高圧1回線6.6kVA 変電:屋上キュービクル型受変電設備
通信設備 電話・通信用メタルケーブル各基準階端子まで実装
通信用光ファイバーケーブルを基準階PSまで実装
防犯設備 機械警備、非接触型カードシステムによる入退室、
電気錠・カードリーダー実装、監視カメラ設置(1階共用部)、
フロア最終退出確認によりエレベータ不停止制御
防災設備 非常照明、誘導灯、自動火災報知設備、スプリンクラー(9~12階)、
連結送水管、屋内消火栓、消火器
空調設備 事務室 個別空調(空冷ヒートポンプマルチパッケージエアコン)、
全熱交換器による一般換気
1フロア2ゾーンを個別に運転可能な空調システム(各階2テナント対応)
給湯設備 各階給湯室・トイレ手洗に給湯、各階給湯室にIHコンロ装備
トイレ 温水洗浄便座、自動手洗い器、エアタオル
バリアフリー対応 多目的トイレ(1Fに設置)、自走式駐車場(1台)
アメニティ リフレッシュコーナー(喫煙室)を2~12階共用部に設置
省エネ・環境配慮 屋上緑化、熱反射ガラスによるカーテンウォール、
電気式ヒートポンプ方式個別空調、全熱交換器による換気
エレベーター設備 乗用15人乗り2基/非常用17人乗り1基(定格速度:105m/min)
